T
x
Îlot des Palais, 2006
Commercial
Concours d’architecture
8 rue Vallière, Québec
8 rue Vallière, Québec
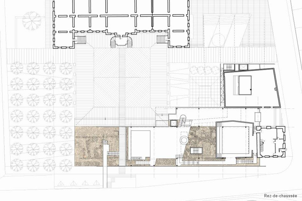
L’intervention architecturale et urbaine du projet se fonde sur notre volonté première de révéler les strates historiques matérialisées par les vestiges et certains bâtiments existants à préserver ou à reconstruire. Il est alors de première importance de les prendre en charge, tels qu’ils sont, dans un dessein cohérent et global. Tout ce qui fait partie de notre mémoire collective – lointaine ou proche, banale ou exceptionnelle - mérite d’être considéré.
Le mouvement spatial, fondé sur le thème de la découverte, se veut diversifié, permissif et multiple. Au niveau urbain, cette mobilité des passants et des visiteurs est conditionnée par une série de dispositifs urbains et architecturaux. Au niveau architectural, l’ensemble du mouvement des personnes converge par la Galerie, qui met en contact les différents usages, une soudaine dilatation du champ visuel s’ouvre sur l’extérieur vers la cour d’honneur et, à l’intérieur, vers les vestiges en contrebas. L’accès depuis la cour est particulièrement souligné par une tour de verre dépoli évoquant l’origine historique du lieu. Vue du haut des fortifications, l’intervention offre une image unitaire. Un toit fédérateur, reprenant le profil de la maison Fraser, coiffe l’ensemble du Pavillon Jean-Talon. Ainsi de l’architecture émergera une véritable rencontre entre la mémoire de notre passé et la confiance sereine en l’avenir.
Le mouvement spatial, fondé sur le thème de la découverte, se veut diversifié, permissif et multiple. Au niveau urbain, cette mobilité des passants et des visiteurs est conditionnée par une série de dispositifs urbains et architecturaux. Au niveau architectural, l’ensemble du mouvement des personnes converge par la Galerie, qui met en contact les différents usages, une soudaine dilatation du champ visuel s’ouvre sur l’extérieur vers la cour d’honneur et, à l’intérieur, vers les vestiges en contrebas. L’accès depuis la cour est particulièrement souligné par une tour de verre dépoli évoquant l’origine historique du lieu. Vue du haut des fortifications, l’intervention offre une image unitaire. Un toit fédérateur, reprenant le profil de la maison Fraser, coiffe l’ensemble du Pavillon Jean-Talon. Ainsi de l’architecture émergera une véritable rencontre entre la mémoire de notre passé et la confiance sereine en l’avenir.
5 600 m2
Ville de Québec
Ville de Québec