ARCHITECTURE
PROJETS
CONTACT
EN
< ...
... >
T
x
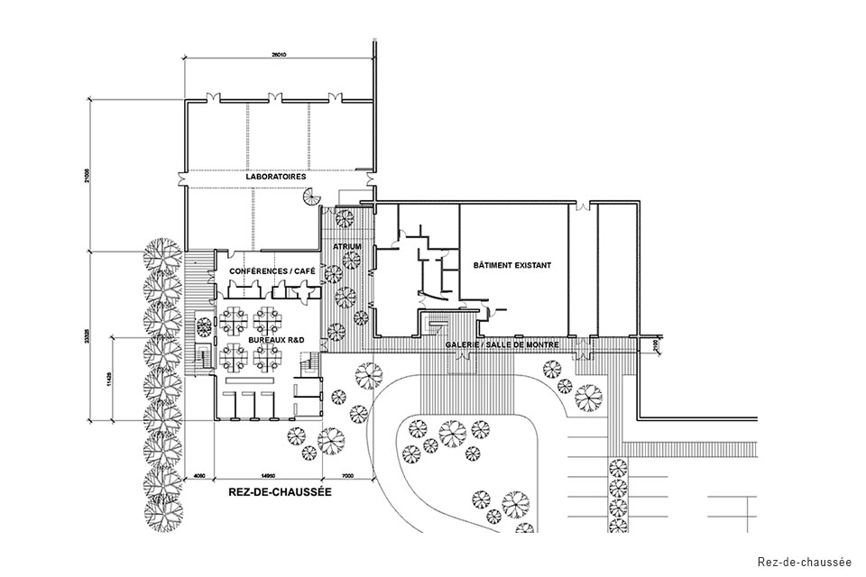
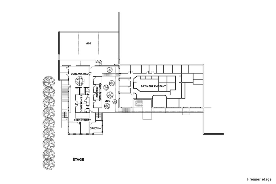
Permacon Siège social, 2005-2007
Commercial/ Mixte
Agrandissement de l'espace de bureau et des laboratoires
Anjou, Québec
$5 Millions