T
x
Bibliothèque Centrale de Blainville, 2013
Culturel
Concours d'architecture
Les nouvelles bibliothèques du XXIe siècle sont des lieux de convergence de la fierté communautaire et de l’engagement civique. Le projet proposé vise à renforcer les sentiments d’appartenance. La référence au « Club House » est pour nous de première importance, dans le caractère champêtre lié à son ouverture au Parterre central du parc Maurice-Tessier et à son assise civique sur le parvis de la rue de la Mairie. La Bibliothèque centrale de Blainville s’affirmera ainsi comme un « troisième lieu », après le domicile et le travail. En plus de devenir un espace communautaire, elle sera un lieu d’interaction sociale, lieu de rencontres informelles.
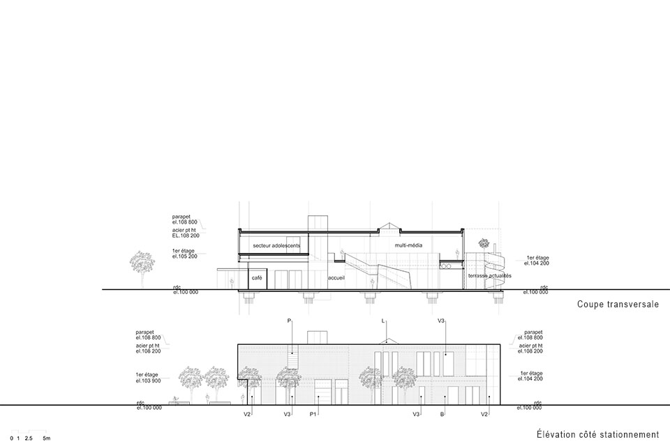
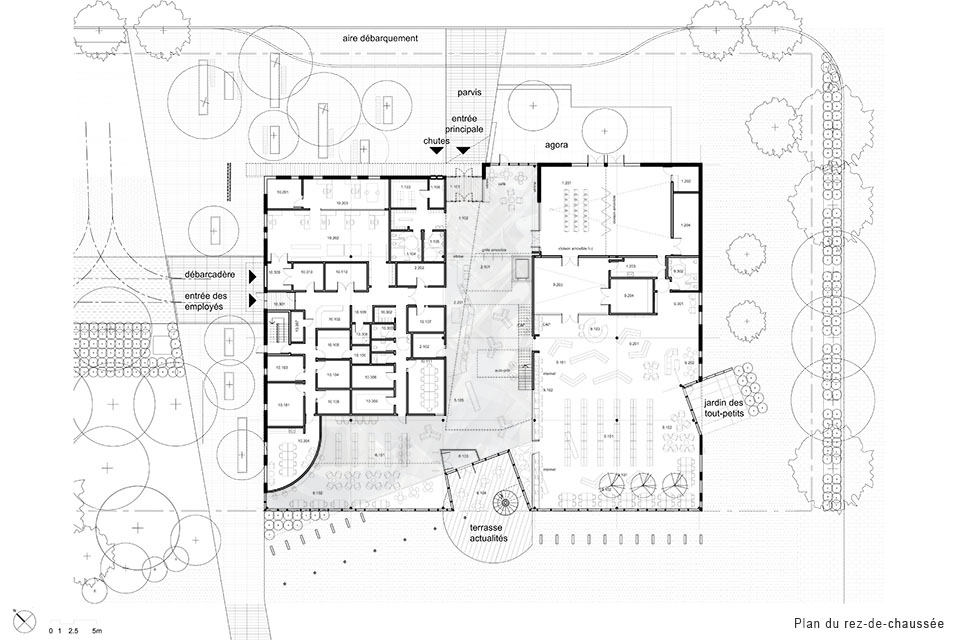
La proximité de services tel que la Mairie et l’aréna en fait le pôle civique principal de Blainville. Le projet d’un futur Parterre central, dans l’axe de l’Hôtel de Ville, oriente naturellement l’implantation du projet vers cet espace public majeur. La compacité du bâti s’exprime dans un prisme unitaire. Ce volume, qui s’installe en bordure du parc, s’y ouvre généreusement. Il en fait en quelque sorte partie intégrale. Le parc et le bâtiment s’interpénètre selon une diagonale. La volumétrie de la nouvelle bibliothèque affirme sa présence urbaine vers les rues et le stationnement et son expression largement ouverte et plus ludique vers le Parterre central, opposant ainsi le caractère minéral au statut plus naturel des lieux.
La proximité de services tel que la Mairie et l’aréna en fait le pôle civique principal de Blainville. Le projet d’un futur Parterre central, dans l’axe de l’Hôtel de Ville, oriente naturellement l’implantation du projet vers cet espace public majeur. La compacité du bâti s’exprime dans un prisme unitaire. Ce volume, qui s’installe en bordure du parc, s’y ouvre généreusement. Il en fait en quelque sorte partie intégrale. Le parc et le bâtiment s’interpénètre selon une diagonale. La volumétrie de la nouvelle bibliothèque affirme sa présence urbaine vers les rues et le stationnement et son expression largement ouverte et plus ludique vers le Parterre central, opposant ainsi le caractère minéral au statut plus naturel des lieux.
3000 m2
$10 Millions
Ville de Blainville
$10 Millions
Ville de Blainville