T
x
Bibliothèque de Pierrefonds, 2013
Culturel
Concours d'architecture, agrandissement de la bibliothèque de Pierrefonds
13555, boulevard de Pierrefonds, Pierrefonds, Québec
13555, boulevard de Pierrefonds, Pierrefonds, Québec
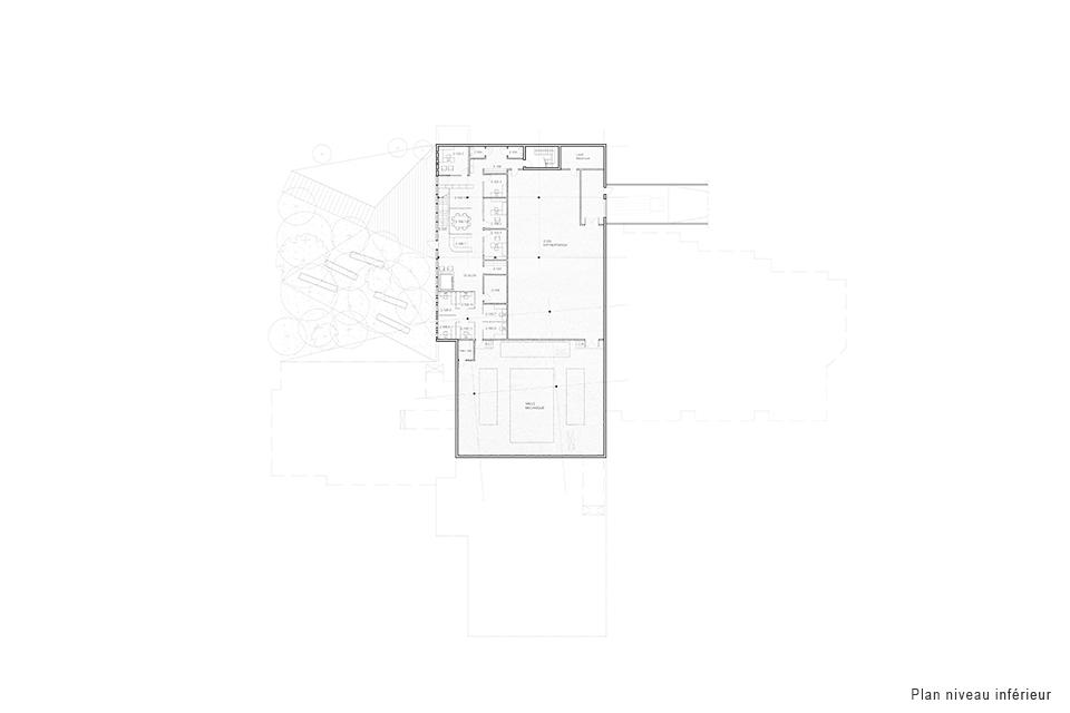
Le projet d’agrandissement de la bibliothèque de Pierrefonds se fonde sur certains principes essentiels. Le premier consiste à concentrer la nouvelle intervention volumétrique dans la portion médiane du bâtiment existant, requalifiant l’entrée actuelle. Une extension, identifiable par son architecture contemporaine épurée, s’installe alors transversalement au bâti existant, de façon à accentuer une présence active sur la rue de Pierrefonds, tout en se prolongeant à l’arrière vers le boisé et le stationnement. Aux points de jonctions avec l’existant, des meneaux et des panneaux de verre et d’aluminium colorés soulignent le prolongement subtil du bâtiment d’origine qui, de part et d’autre de l’intervention, est conservé dans son intégralité, en respect et pérennité de l’œuvre des architectes Rosen Caruso Vescei + Gagnier Gagnon.
Le grand volume de verre s’ouvre généreusement vers ce qui constitue, à l’ouest, le carrefour civique, défini au sud par l’esplanade culturelle et la terrasse du café, en continuité avec l’entrée de l’Hôtel de Ville et, au nord, par la cour encaissée qui marque le prolongement du magnifique boisé. Cet encaissement promulgue lumière naturelle et vues, du sous-sol à l’étage. Il devient le « bijou » de la composition d’ensemble, tout en soutenant l’identité verte de cette bibliothèque. Sur la portion ouest du bâtiment existant, un toit jardin marque la continuité végétale du boisé. La figure en croix de la bibliothèque autorise une concentration des usages tout en qualifiant quatre quadrants paysagés: le boisé (contemplation), l’esplanade culturelle (accueil, animation), le jardin des enfants (ludique) et le stationnement et ses débarcadères.
La qualité du mouvement intérieur de la bibliothèque est intimement liée à la découverte spatiale. Au centre de cette figure en croix s’installe la salle multifonctionnelle adossée à la salle d’animation. Ce volume subit une légère rotation de façon à dynamiser et donner une amplitude à la galerie-agora d’un côté et l’escalier-gradins de l’autre. Ces salles peuvent se moduler selon différents types d’occupations ou d’événements. L’emboîtement des deux architectures, existante et nouvelle, se révèle par cet effet rotule du volume central et des vides qui le bordent. Continuité spatiale et percées visuelles s’associent afin de soutenir le mouvement des usagers.
Le grand volume de verre s’ouvre généreusement vers ce qui constitue, à l’ouest, le carrefour civique, défini au sud par l’esplanade culturelle et la terrasse du café, en continuité avec l’entrée de l’Hôtel de Ville et, au nord, par la cour encaissée qui marque le prolongement du magnifique boisé. Cet encaissement promulgue lumière naturelle et vues, du sous-sol à l’étage. Il devient le « bijou » de la composition d’ensemble, tout en soutenant l’identité verte de cette bibliothèque. Sur la portion ouest du bâtiment existant, un toit jardin marque la continuité végétale du boisé. La figure en croix de la bibliothèque autorise une concentration des usages tout en qualifiant quatre quadrants paysagés: le boisé (contemplation), l’esplanade culturelle (accueil, animation), le jardin des enfants (ludique) et le stationnement et ses débarcadères.
La qualité du mouvement intérieur de la bibliothèque est intimement liée à la découverte spatiale. Au centre de cette figure en croix s’installe la salle multifonctionnelle adossée à la salle d’animation. Ce volume subit une légère rotation de façon à dynamiser et donner une amplitude à la galerie-agora d’un côté et l’escalier-gradins de l’autre. Ces salles peuvent se moduler selon différents types d’occupations ou d’événements. L’emboîtement des deux architectures, existante et nouvelle, se révèle par cet effet rotule du volume central et des vides qui le bordent. Continuité spatiale et percées visuelles s’associent afin de soutenir le mouvement des usagers.
4500 m2
Ville de Montréal
Projet réalisé en collaboration avec Groupe A
Ville de Montréal
Projet réalisé en collaboration avec Groupe A