T
x
Bibliothèque Monique-Corriveau, 2013
Culturel
Agrandissement et réhabilitation de l’église St-Denys-du-Plateau
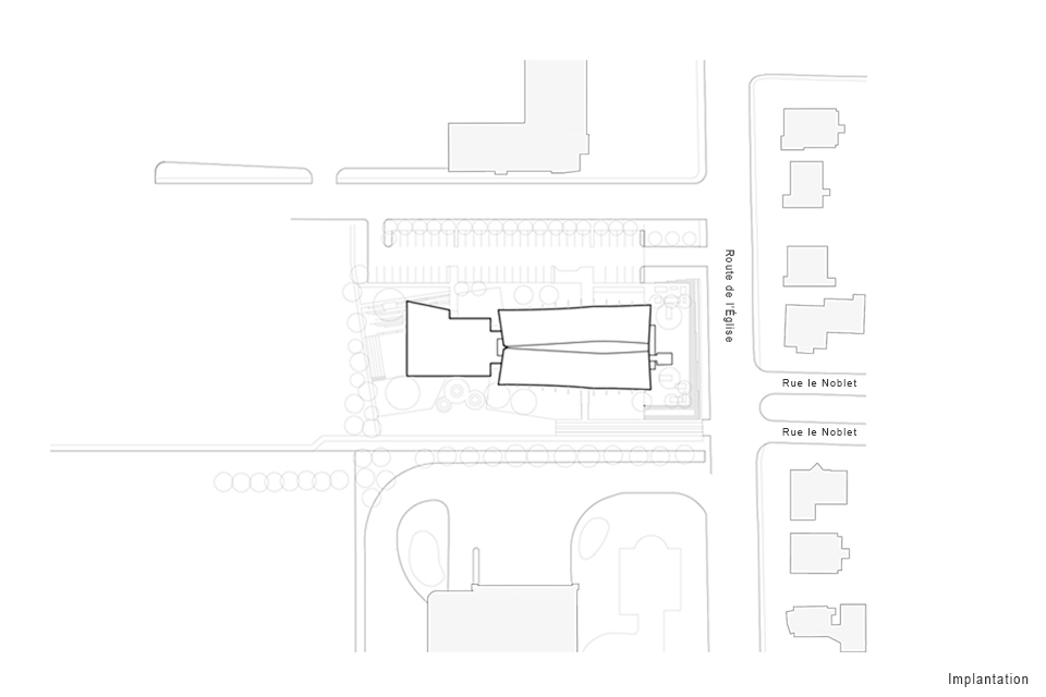
1100 route de l’Église, Québec
1100 route de l’Église, Québec
Le projet de la bibliothèque Monique-Corriveau consiste en l’agrandissement et la réhabilitation de l’église St-Denys-du-Plateau. L’intention principale de ce recyclage architectural vise au respect sensible d’une architecture religieuse moderne reconnue. Elle se fonde principalement sur ces deux grands voiles de la toiture qui s’ouvre généreusement vers la rue de l’Église et vers le parc à l’ouest. Le site s’inscrit dans la ville comme une véritable étoffe qui tisse les liens entre son axe civique, la rue de l’Église, son cadre urbain et ses espaces publics.
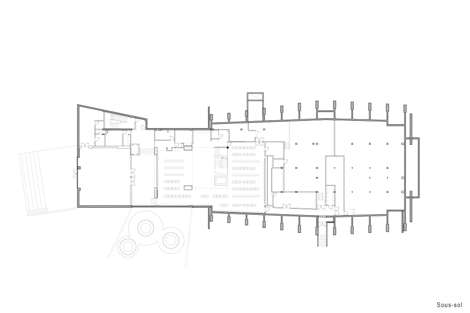
Ainsi, la nouvelle bibliothèque utilise ces « signifiants architecturaux bruts » afin de révéler sa présence sur rue et de souligner son caractère public indéniable. Cet ensemble structuré laisse pénétrer une série de plateformes libres évoluant entre le parvis de la bibliothèque, accroché à l’axe civique à l’est, et le parc à l’ouest, s’infiltrant subtilement dans l’espace de la bibliothèque. De ce mouvement découle l’espace fluide du parvis de l’entrée, de l’accueil et du vide central, dans un cheminement continu, s’ouvrant généreusement sur le jardin protégé au nord et sur les cours encaissées au sud.
Les usages de la bibliothèque se développent à partir d’un hall majestueux, qui met en valeur le grand espace du bâtiment existant et sa structure de bois apparente. La spatialité de l’ensemble est qualifiée par un grand vide central localisé à cheval entre l’église et le volume ouest. Il permet un emboîtement spatial et une fluidité à la fois horizontale et verticale.
Ainsi, la nouvelle bibliothèque utilise ces « signifiants architecturaux bruts » afin de révéler sa présence sur rue et de souligner son caractère public indéniable. Cet ensemble structuré laisse pénétrer une série de plateformes libres évoluant entre le parvis de la bibliothèque, accroché à l’axe civique à l’est, et le parc à l’ouest, s’infiltrant subtilement dans l’espace de la bibliothèque. De ce mouvement découle l’espace fluide du parvis de l’entrée, de l’accueil et du vide central, dans un cheminement continu, s’ouvrant généreusement sur le jardin protégé au nord et sur les cours encaissées au sud.
Les usages de la bibliothèque se développent à partir d’un hall majestueux, qui met en valeur le grand espace du bâtiment existant et sa structure de bois apparente. La spatialité de l’ensemble est qualifiée par un grand vide central localisé à cheval entre l’église et le volume ouest. Il permet un emboîtement spatial et une fluidité à la fois horizontale et verticale.
4400 m2
Ville de Québec
Projet réalisé en collaboration avec Côté Leahy Cardas architectes
Ville de Québec
Projet réalisé en collaboration avec Côté Leahy Cardas architectes