T
x
Hôtel Godin, 2004
Commercial
Hôtel-Boutique incorporant un bâtiment historique du centre-ville de Montréal
10 rue Sherbrooke ouest, Montréal
10 rue Sherbrooke ouest, Montréal
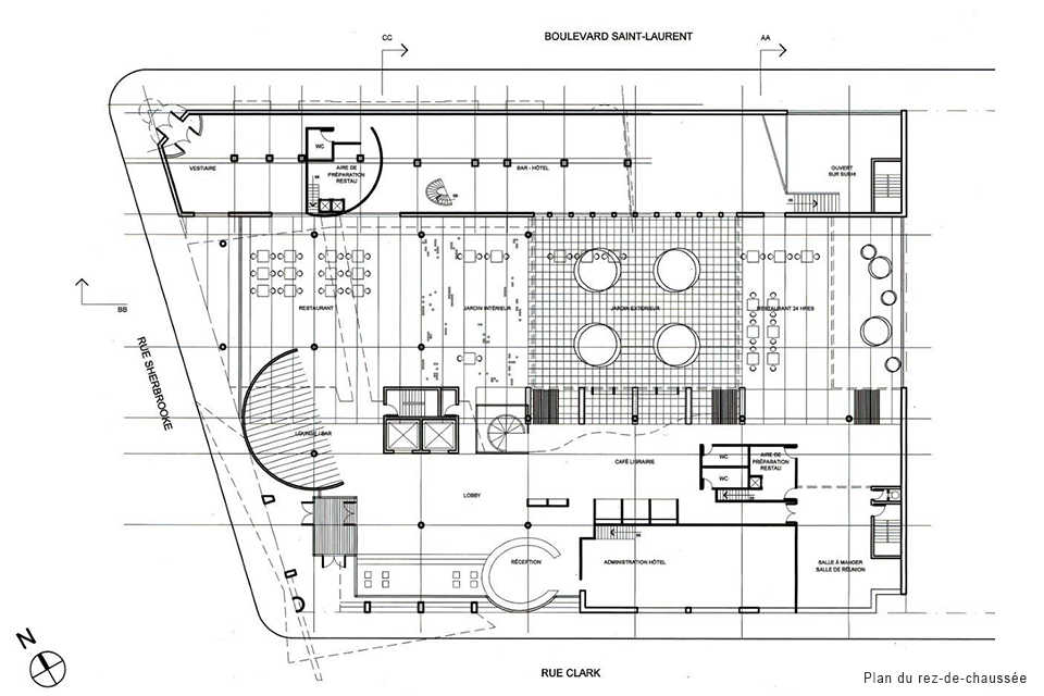
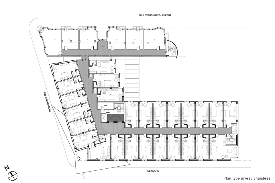
Le site est au carrefour des deux principales artères de Montréal, soient la rue Sherbrooke et le boulevard St-Laurent. Au cœur des activités nocturnes de Montréal, ce projet d’hôtel de 140 chambres saura récupérer la dynamique urbaine pour la traduire dans une coloration propre à la nouvelle vague des hôtels-boutiques de niveau international.
Le soulèvement du corps principal du bâtiment au centre de l’îlot vient libérer un espace central, lieu public urbain tenu par les usages de restauration de l’hôtel. Un grand jardin suspendu en fond de cour offre la respiration et la tranquillité indispensables à cette fonction hôtelière en plein centre-ville. Une réhabilitation de l’immeuble Godin vient compléter et redonner vie à cet angle urbain inactif depuis plusieurs années.
Le soulèvement du corps principal du bâtiment au centre de l’îlot vient libérer un espace central, lieu public urbain tenu par les usages de restauration de l’hôtel. Un grand jardin suspendu en fond de cour offre la respiration et la tranquillité indispensables à cette fonction hôtelière en plein centre-ville. Une réhabilitation de l’immeuble Godin vient compléter et redonner vie à cet angle urbain inactif depuis plusieurs années.
1560 m2
Hôtel Cadim (Godin) inc., 3879607 Canada inc. et Hôtels Incognita inc.
Hôtel Cadim (Godin) inc., 3879607 Canada inc. et Hôtels Incognita inc.