T
x
Complexe Multifonctionnel Sussex-Mackenzie, 2005
Commercial
Complexe multi usages, habitations de prestige et commerces
Ottawa, Ontario
Ottawa, Ontario
Premier Prix, Concours sur invitation, 2001
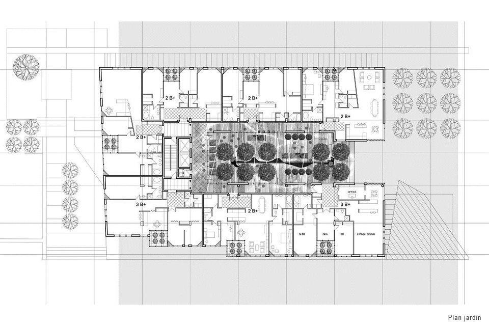
Situé sur le même axe que l’ambassade américaine et en face du prestigieux hôtel Château Laurier, ce projet multifonctionnel marque un site majeur de la route cérémoniale de la capitale nationale. À la jonction de la rue Rideau et de la promenade Sussex, le Complexe Multifonctionnel Sussex-Mackenzie intègre une place et un jardin suspendu qui réintroduisent le thème de la nature au sein de l’environnement construit urbain.
Fidèle aux objectifs de la CCN et de la ville d'Ottawa cherchant à revitaliser le cœur du centre-ville, la proposition architecturale consiste en 70 unités d’habitation construites autour d’équipements collectifs et d’un jardin suspendu. Une grande variété de types d’habitation est proposée, des unités de 3 chambres aux étages inférieurs à de grands appartements sur 2 niveaux localisés aux étages supérieurs. Au niveau du trottoir, restaurants et boutiques sont prévus sur la grande place faisant front à Rideau Street.
Fidèle aux objectifs de la CCN et de la ville d'Ottawa cherchant à revitaliser le cœur du centre-ville, la proposition architecturale consiste en 70 unités d’habitation construites autour d’équipements collectifs et d’un jardin suspendu. Une grande variété de types d’habitation est proposée, des unités de 3 chambres aux étages inférieurs à de grands appartements sur 2 niveaux localisés aux étages supérieurs. Au niveau du trottoir, restaurants et boutiques sont prévus sur la grande place faisant front à Rideau Street.
2960 m² espaces commerciaux + 70 unités de condominiums + 171 espaces de stationnement souterrain
Claridge Homes Development Corporation
Projet réalisé en collaboration avec Murray & Murray et IBI Group
Claridge Homes Development Corporation
Projet réalisé en collaboration avec Murray & Murray et IBI Group