T
x
Palais Montcalm, 2002
Culturel
Concours d'architecture sur invitation
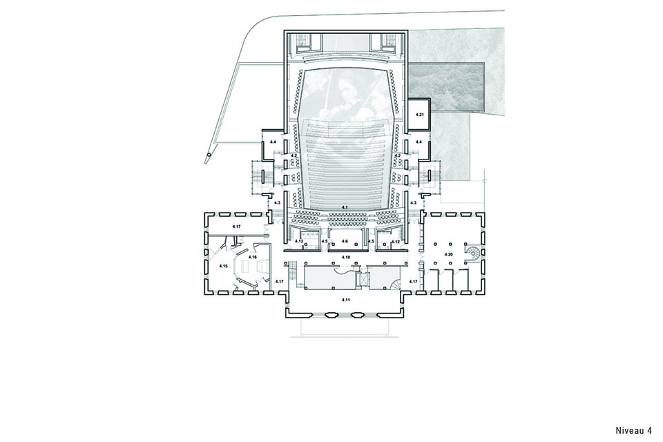
Participant au projet de développement de la « coulée verte », le Palais Montcalm devient le lieu culturel majeur. Un espace public inédit est révélé; la Cour. La principale intervention en façade constitue la mise en place d’un grand plan de verre à transparences variables et à teneur signalétique renforçant la frontalité de la salle de concert sur la grande place. Le volume de la nouvelle salle de concert de la « Maison de la musique de la Capitale nationale » devient l’élément référentiel de la composition urbaine d’ensemble qui affirmera sa présence dans la ville par son rapport au « lointain ».
11 650 m², 800 places
$10.5 Millions
Ville de Québec
$10.5 Millions
Ville de Québec