T
x
Siège social de La Capitale, 2012
Commercial/ Mixte
Rénovation et agrandissement du siège social de La Capitale
625 rue Saint-Amable, Québec
625 rue Saint-Amable, Québec
Prix d’excellence de l’Institut de développement urbain du Québec, 2013
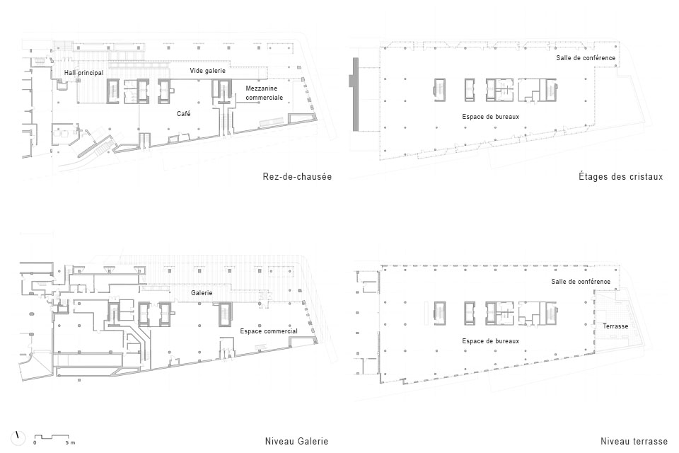
Ce projet, situé dans l’aire de protection de la Colline parlementaire près de la Grande-Allée et des Plaines d’Abraham, avait pour but l’agrandissement du siège social de La Capitale. L’immeuble évoque par son volume, sa présence et son assise au sol une idée de la continuité urbaine sur un site hautement qualifiée, amorçant un dialogue avec l’espace vert en face et l’architecture institutionnelle de la Colline Parlementaire. Le volume et l’architecture, tout en subtilité, se laissent découvrir lentement en exposant leurs parties distinctes et rejettent toute expression monolithique.
Le premier plan en verre et en pierre en masque une partie; c’est le corps principal. La faille sous ce corps exprime la profondeur et la richesse volumétrique en un dévoilement progressif; la préciosité est ainsi « dissimulée ». Le couronnement constitué des cristaux de verre lumineux et la tour-lanterne qui agit comme un signal dans la ville anime le volume par la lumière du jour et de la nuit en le jeu savant de la réflexion et de la transparence.
Le RDC est constitué d’une arcade extérieure invitant l’espace public sous le bâtiment. Un escalier extérieur dirige le piéton vers le hall à la jonction de l’agrandissement et du bâtiment existant et donne accès à une partie du RDC occupée par un commerce animant ainsi le coin de rue.
Le premier plan en verre et en pierre en masque une partie; c’est le corps principal. La faille sous ce corps exprime la profondeur et la richesse volumétrique en un dévoilement progressif; la préciosité est ainsi « dissimulée ». Le couronnement constitué des cristaux de verre lumineux et la tour-lanterne qui agit comme un signal dans la ville anime le volume par la lumière du jour et de la nuit en le jeu savant de la réflexion et de la transparence.
Le RDC est constitué d’une arcade extérieure invitant l’espace public sous le bâtiment. Un escalier extérieur dirige le piéton vers le hall à la jonction de l’agrandissement et du bâtiment existant et donne accès à une partie du RDC occupée par un commerce animant ainsi le coin de rue.
37000 m2, 14000m2 stationnement
La Capitale Immobilière MFQ Inc.
Projet réalisé par Lemay et Coarchitecture en collaboration avec Dan Hanganu, architectes
La Capitale Immobilière MFQ Inc.
Projet réalisé par Lemay et Coarchitecture en collaboration avec Dan Hanganu, architectes