T
x
Centre d'archives de Montréal, 2000
Institutionnel
Rénovation et agrandissement
Montréal, Québec
Montréal, Québec
Médaille du Gouverneur Général, Institut Royal d'Architecture du Canada, 2002
Prix d'excellence, Ordre des Architectes du Québec, 2000
Prix Orange, Sauvons Montréal, 2000
Premier prix, concours sur invitation, 1997
Prix d'excellence, Ordre des Architectes du Québec, 2000
Prix Orange, Sauvons Montréal, 2000
Premier prix, concours sur invitation, 1997
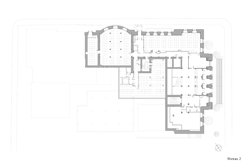
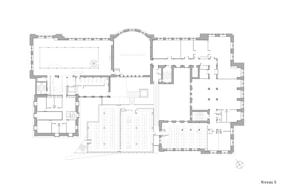
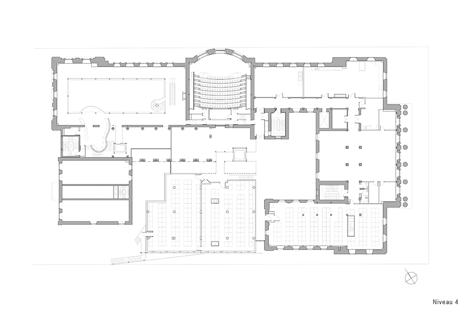
Gardien et source de rayonnement de la mémoire collective de notre société, le Centre d’Archives de Montréal a pour mission de conserver et de diffuser les documents à valeur patrimoniale. Le site présente des particularités des plus adéquates pour ce programme; occupant un îlot entier contenant trois bâtiments, chacun d’une époque différente significative de notre histoire récente. Ensemble, ils présentent l’image d’une architecture disparate au niveau des styles et des échelles. L’addition d’un quatrième bâtiment sur le site, accueillant des archives, transforme l’espace résiduel en un atrium central pour le complexe.
C’est sur ces paramètres de base que nous avons conçu le parti architectural du Centre d’Archives de Montréal. Il se fait autour de l’axe principal longitudinal, et se développe à partir de deux espaces verticaux; un atrium intérieur et une cour extérieure contenue par la volumétrie. Le travail architectural se focalise quand à lui sur l’exploitation des matériaux existants, pierre, moellon, brique et plâtre, en rapport constant avec des matériaux contemporains tels que l’aluminium strié, le métal perforé et le verre.
Le centre offre une variété d’espaces pour tous les utilisateurs et utilise la transparence et la lumière afin d’amener un sentiment de fluidité et de mouvement. Le centre comprend une salle d’exposition, un auditorium, un espace de contrôlé pour les archives, un café et une impressionnante salle de lecture sur plusieurs niveaux.
C’est sur ces paramètres de base que nous avons conçu le parti architectural du Centre d’Archives de Montréal. Il se fait autour de l’axe principal longitudinal, et se développe à partir de deux espaces verticaux; un atrium intérieur et une cour extérieure contenue par la volumétrie. Le travail architectural se focalise quand à lui sur l’exploitation des matériaux existants, pierre, moellon, brique et plâtre, en rapport constant avec des matériaux contemporains tels que l’aluminium strié, le métal perforé et le verre.
Le centre offre une variété d’espaces pour tous les utilisateurs et utilise la transparence et la lumière afin d’amener un sentiment de fluidité et de mouvement. Le centre comprend une salle d’exposition, un auditorium, un espace de contrôlé pour les archives, un café et une impressionnante salle de lecture sur plusieurs niveaux.
13 700m2
Société immobilière du Québec
Projet réalisé en collaboration avec Provencher Roy + Associés Architectes
Société immobilière du Québec
Projet réalisé en collaboration avec Provencher Roy + Associés Architectes