T
x
Nouvelle ambassade du Canada en Allemagne, 1998
Institutionnel
Concours national d’architecture
Berlin, Allemagne
Berlin, Allemagne
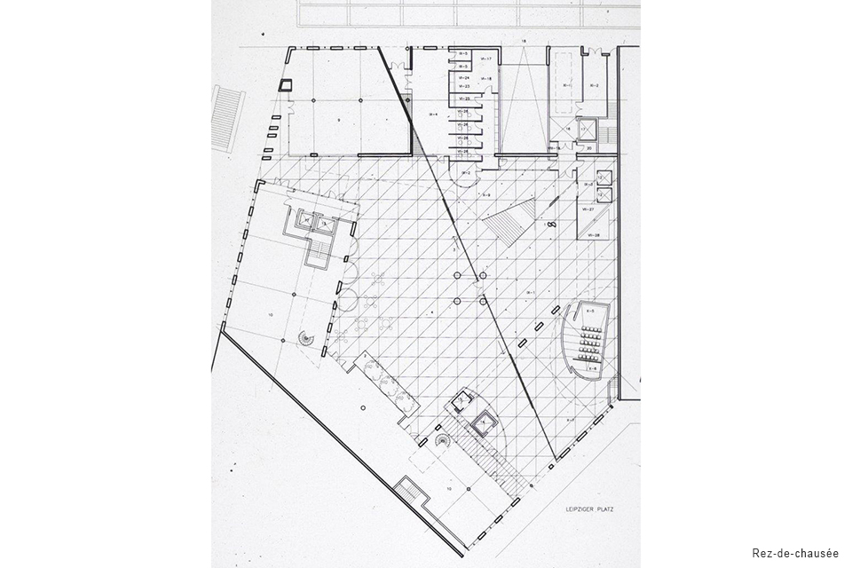
La réunification de l’Allemagne et le transfert subséquent du parlement allemand à Berlin a créé une opportunité unique pour l’édification d’une nouvelle ambassade du Canada. Un programme complexe qui combine 6000m2 pour l’ambassade, à 4800m2 d’espaces commerciaux locatifs, et à 2700m2 de condominiums résidentiels, s’installe au Leipzigerplatz avec vues sur le Reichstag, le Tiergarten et la porte de Brandebourg.
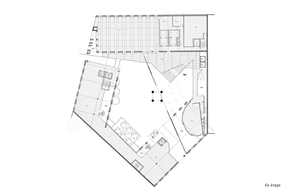
Deux cours superposées, séparées d’un plancher de verre, constituent le foyer de l’enclave urbaine. La cour d’honneur au rez-de-chaussée, est un espace extérieur animé par un passage piétonnier, traversant l’îlot de Leipzigerplatz à Ebertstrasse. Une paroi de verre bissectrice divise la cour afin de qualifier d’un côté; l’entrée de l’ambassade et ses fonctions publiques et culturelles (salle de réception, lieu d’expositions, et centre de conférence), de l’autre côté; une galerie commerciale et des restaurants. Les niveaux supérieurs de l’ambassade réinterprètent l’archétype des palais de la renaissance avec une cour centrale ceinturée d’une galerie. Un jardin de sculptures au plancher de verre planté de topiaires, agit comme centre d’intérêt visuel et sert d’extension extérieure aux activités protocolaires. Les espaces locatifs et les fonctions résidentielles ont des entrées et des circulations indépendantes afin d’assurer et de préserver l’autonomie de l’ambassade.
Deux cours superposées, séparées d’un plancher de verre, constituent le foyer de l’enclave urbaine. La cour d’honneur au rez-de-chaussée, est un espace extérieur animé par un passage piétonnier, traversant l’îlot de Leipzigerplatz à Ebertstrasse. Une paroi de verre bissectrice divise la cour afin de qualifier d’un côté; l’entrée de l’ambassade et ses fonctions publiques et culturelles (salle de réception, lieu d’expositions, et centre de conférence), de l’autre côté; une galerie commerciale et des restaurants. Les niveaux supérieurs de l’ambassade réinterprètent l’archétype des palais de la renaissance avec une cour centrale ceinturée d’une galerie. Un jardin de sculptures au plancher de verre planté de topiaires, agit comme centre d’intérêt visuel et sert d’extension extérieure aux activités protocolaires. Les espaces locatifs et les fonctions résidentielles ont des entrées et des circulations indépendantes afin d’assurer et de préserver l’autonomie de l’ambassade.
13 500m² et 97 espaces de stationnement
Gouvernement du Canada
Gouvernement du Canada