T
x
Centre d’information de la Police Canadienne , 2003
Institutionnel
Agrandissement du siège social de la GRC
Ottawa, Ontario
Ottawa, Ontario
Premier prix, Concours sur invitation, 2001
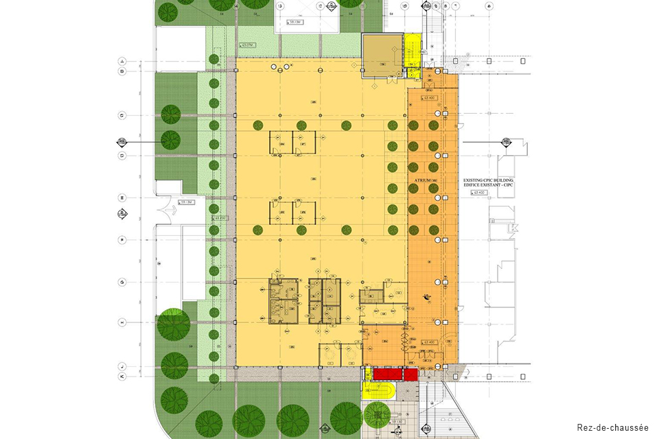
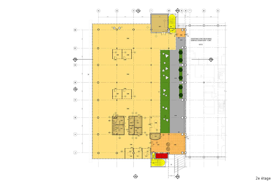
Située au cœur du campus de la RCMP à Ottawa, adjacent à une voie d’accès majeure à la Capitale Nationale, l'agrandissement du Centre d'Information de la Police Canadienne contribue à l’image de l’institution tout en tirant les qualités génératrices : permanence, stabilité, professionnalisme, organisation rationnelle et un respect pour l’environnement. Servant à collecter la chaleur, la conserver et la redistribuer dans les espaces en hiver, alors qu’elle est évacuée durant les chaudes journées estivales, un atrium fait office d’espace tampon avec le bâtiment existant. Quant aux espaces de bureaux, la planification sans colonnes offre une grande flexibilité et aucune obstruction visuelle.
6400 m²
AXOR, Travaux Publics Canada
AXOR, Travaux Publics Canada







