T
x
Bibliothèque Saul-Bellow, 2011
Culturel
Concours d'architecture, Finaliste
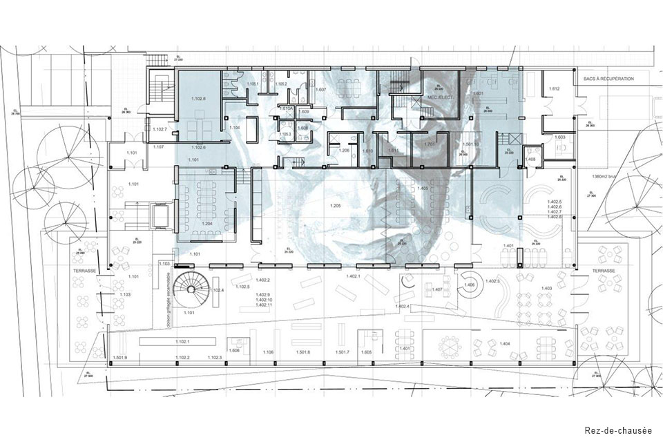
Le projet vise le réaménagement et l’agrandissement de l’actuelle bibliothèque de l’arrondissement de Lachine afin de la moderniser et d’en faire une bibliothèque du XXIe siècle.
L’objectif premier était de créer une figure simple et unitaire. Le nouveau enveloppe l’ancien, qui vient s’affirme tel un « monument » qualifiant une place publique. Le projet offre ainsi un plateau encaissé dans le sol, comme un espace collectif unitaire de grande hauteur et très lumineux. L’atrium central renforce le caractère unique et collectif de la bibliothèque. De plus, une logique spatiale ordonne le programme, ceci entre l’espace contenu de l’existant et l’espace ouvert et plus lumineux de l’extension.
L’entrée, localisée sur la 32e avenue, répond au statut public de la bibliothèque et anime la rue. L’angle du bâtiment, avec la projection du balcon, soutient le caractère exceptionnel de ce bâtiment public et signale son statut institutionnel et communautaire. Ce balcon devient un repère depuis les quartiers environnants et permet des vues vers les rives du Vieux-Lachine.
Les façades, traitées de manière homogène, présente une double sérigraphie permettant, selon son orientation, une vision changeant de la bibliothèque. Cette impression sur verre correspond à la tradition textile et manufacturière associée à l’origine du Canal Lachine.
L’objectif premier était de créer une figure simple et unitaire. Le nouveau enveloppe l’ancien, qui vient s’affirme tel un « monument » qualifiant une place publique. Le projet offre ainsi un plateau encaissé dans le sol, comme un espace collectif unitaire de grande hauteur et très lumineux. L’atrium central renforce le caractère unique et collectif de la bibliothèque. De plus, une logique spatiale ordonne le programme, ceci entre l’espace contenu de l’existant et l’espace ouvert et plus lumineux de l’extension.
L’entrée, localisée sur la 32e avenue, répond au statut public de la bibliothèque et anime la rue. L’angle du bâtiment, avec la projection du balcon, soutient le caractère exceptionnel de ce bâtiment public et signale son statut institutionnel et communautaire. Ce balcon devient un repère depuis les quartiers environnants et permet des vues vers les rives du Vieux-Lachine.
Les façades, traitées de manière homogène, présente une double sérigraphie permettant, selon son orientation, une vision changeant de la bibliothèque. Cette impression sur verre correspond à la tradition textile et manufacturière associée à l’origine du Canal Lachine.
2000 m2
$6.2 Millions
Ville de Lachine
$6.2 Millions
Ville de Lachine