T
x
Cité du savoir, 2007
Institutionnel
Concours d'architecture
La présence architecturale dans la ville et la qualité des espaces intérieurs du projet vise à transformer un lieu actuellement en friche situé aux abords du Collège Montmorency, au cœur de la Ville de Laval, en un bâtiment-phare, lieu du savoir universitaire. Ce bâtiment transforme le paysage urbain de ce secteur en développement et fait de ce site un nouveau point de repère essentiel à son identification.
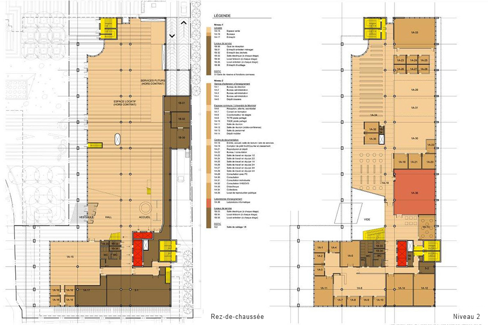
La singularité du projet s’affirme principalement par le caractère ouvert et transparent des espaces, soulignant une continuité spatiale à la fois verticale et horizontale. Une grande fluidité des circulations et des transparences, autant en plan qu’en coupe, permet une compréhension de la logique interne de la disposition des usages par étages.
Les différents espaces de circulation sont aussi constamment qualifiés par des ouvertures et des vues cadrées sur le paysage environnant et lointain. Une grande percée transversale au travers du bâtiment installe les escaliers sculpturaux et le noyau des circulations verticales. Ce parcours vertical libre se poursuit aux étages supérieurs par des escaliers individuels unidirectionnels superposés, créant un mouvement ascendant en boucle autour d’un vide. Ce parcours culmine au niveau 7 vers une ouverture généreuse sur le jardin sud, orienté vers la vue du Mont-Royal et celle du Campus principal de l’Université de Montréal, lieu totémique de Montréal et de sa région.
La singularité du projet s’affirme principalement par le caractère ouvert et transparent des espaces, soulignant une continuité spatiale à la fois verticale et horizontale. Une grande fluidité des circulations et des transparences, autant en plan qu’en coupe, permet une compréhension de la logique interne de la disposition des usages par étages.
Les différents espaces de circulation sont aussi constamment qualifiés par des ouvertures et des vues cadrées sur le paysage environnant et lointain. Une grande percée transversale au travers du bâtiment installe les escaliers sculpturaux et le noyau des circulations verticales. Ce parcours vertical libre se poursuit aux étages supérieurs par des escaliers individuels unidirectionnels superposés, créant un mouvement ascendant en boucle autour d’un vide. Ce parcours culmine au niveau 7 vers une ouverture généreuse sur le jardin sud, orienté vers la vue du Mont-Royal et celle du Campus principal de l’Université de Montréal, lieu totémique de Montréal et de sa région.
Projet réalisé en consortium avec Tremblay L'Ecuyer Architectes Associés
20 000m2
Axor et l’Université de Montréal
20 000m2
Axor et l’Université de Montréal




