T
x
École primaire de l'Île-des-Soeurs, 2008
Institutionnel
Agrandissement de l’École primaire de l’Île-des-Sœurs
530, rue de Gaspé, Île-des-Sœurs, Montréal, Québec
530, rue de Gaspé, Île-des-Sœurs, Montréal, Québec
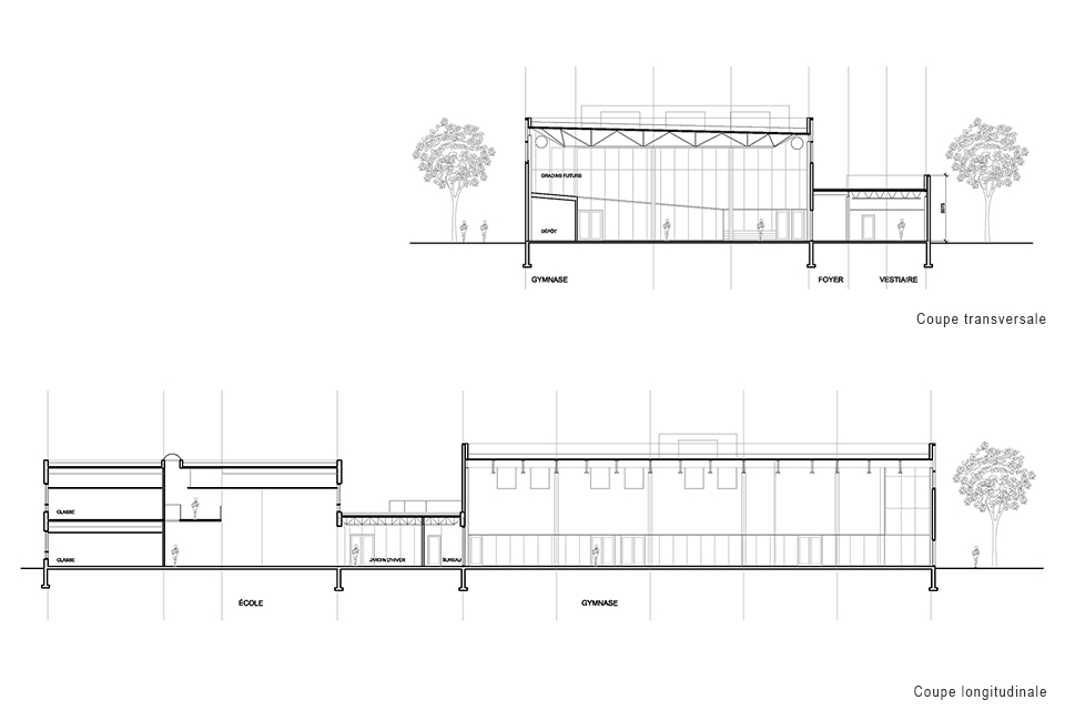
L’agrandissement de l’École primaire de l’Île-des-Sœurs correspond à une double volonté de la Commission scolaire Marguerite Bourgeois et de l’Arrondissement de Verdun, d’augmenter la capacité et les besoins en classes ainsi que d’offrir un équipement sportif à la fois aux élèves de l’école et à la population de l’Île. Cette extension de l’école permet de faire le lien entre cette dernière et le Centre culturel Elgar voisin. Ce projet est installé au cœur d’un parc de quartier, en bordure de terrains de tennis et de la piscine extérieure. L’ensemble constitue un équipement culturel et récréatif unique. Une attention particulière a été portée sur l’expression architecturale, afin de soutenir le caractère unitaire de l’ensemble.
Le programme de cet agrandissement se divise en deux grandes unités, soit un bloc classes de deux étages, prolongeant une aile de l’école existante et un grand gymnase qui peut être aménagé en un, deux ou trois plateaux de jeux. Douze classes et un aire de casiers sont prévu d’un côté et le gymnase de l’autre avec un jardin d’hiver entre les deux. Un lien piétonnier intérieur autorise la connexion de cet ensemble avec le Centre culturel. Différentes possibilités d’accès et de contrôle sont aussi aménagés afin de permettre ou non les accès publics et plus privés liés à l’École. Un partage de la bibliothèque et de la piscine voisine est offert à l’école primaire.
Le programme de cet agrandissement se divise en deux grandes unités, soit un bloc classes de deux étages, prolongeant une aile de l’école existante et un grand gymnase qui peut être aménagé en un, deux ou trois plateaux de jeux. Douze classes et un aire de casiers sont prévu d’un côté et le gymnase de l’autre avec un jardin d’hiver entre les deux. Un lien piétonnier intérieur autorise la connexion de cet ensemble avec le Centre culturel. Différentes possibilités d’accès et de contrôle sont aussi aménagés afin de permettre ou non les accès publics et plus privés liés à l’École. Un partage de la bibliothèque et de la piscine voisine est offert à l’école primaire.
2877 m2
Commission scolaire Marguerite-Bourgeois
Projet réalisé en collaboration avec Leclerc architecte
Commission scolaire Marguerite-Bourgeois
Projet réalisé en collaboration avec Leclerc architecte






