ARCHITECTURE
PROJECTS
CONTACT
FR
< ...
... >
T
x
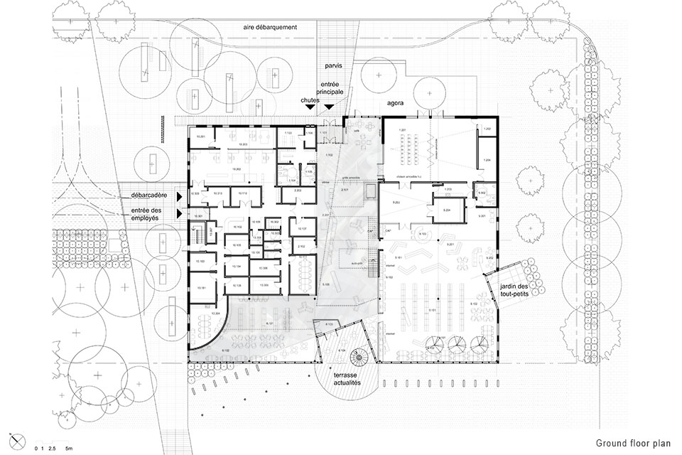
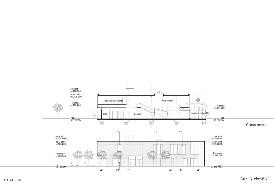
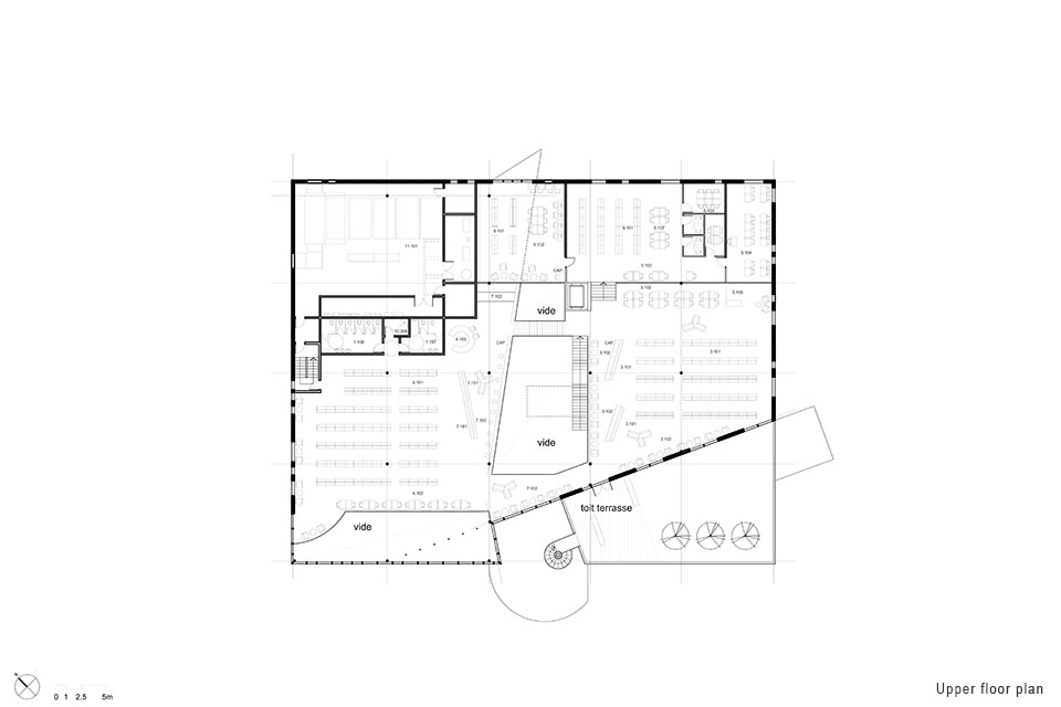
Blainville Central Library, 2013
Cultural
Architecture competition
3000 m2
$10 Millions
City of Blainville