ARCHITECTURE
PROJECTS
CONTACT
FR
< ...
... >
T
x
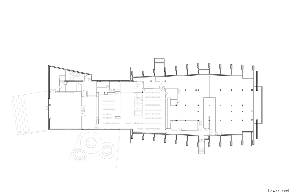
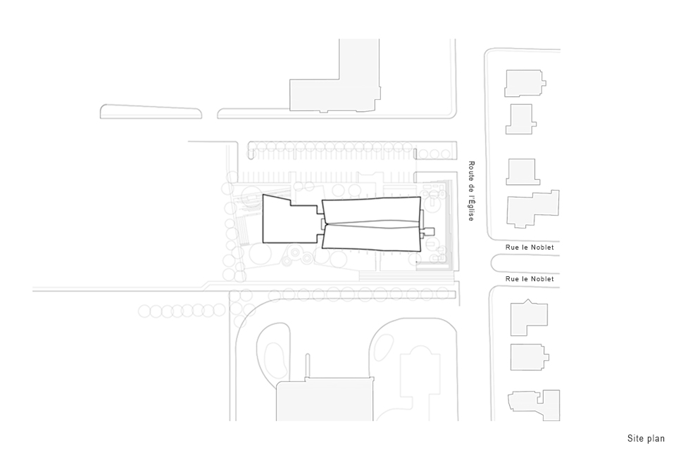
Monique-Corriveau Library, 2013
Cultural
Enlargement and conversion of the St-Denys-du-Plateau Church
1100 route de l’Église, Quebec
4400 m2
Quebec city
Project in collaboration with Côté Leahy Cardas architects