ARCHITECTURE
PROJECTS
CONTACT
FR
< ...
... >
T
x
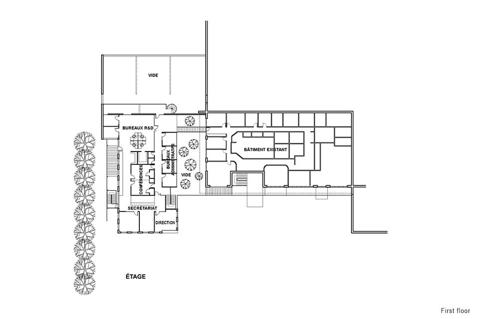
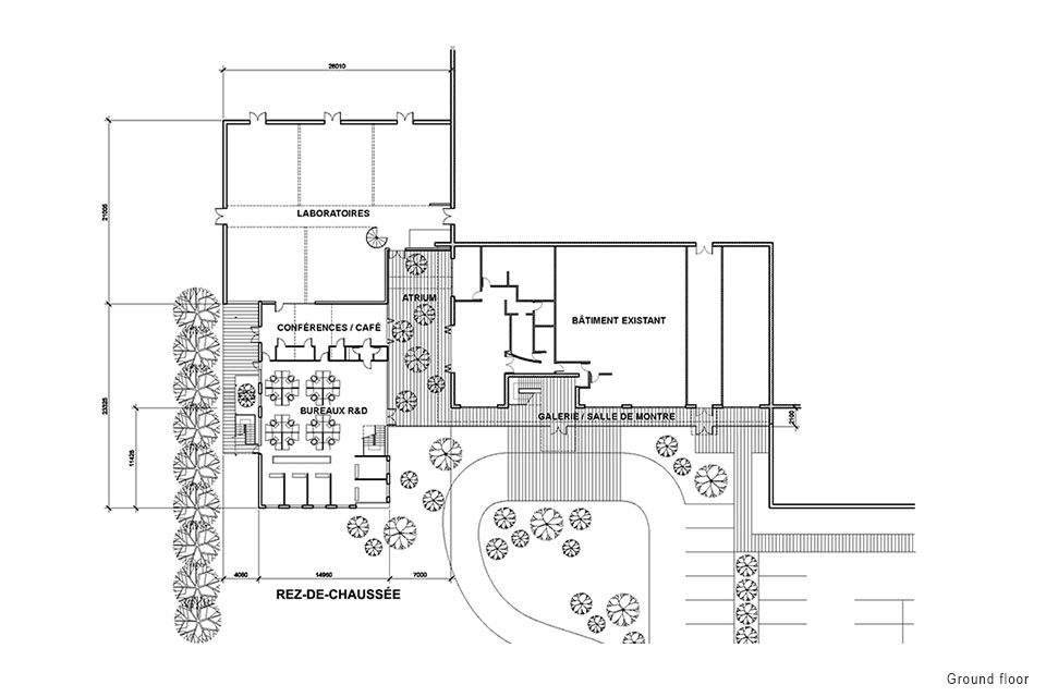
Permacon Head quarters, 2005-2007
Commercial/ Mixte
Office space and laboratories
Anjou, Quebec
$5 Millions